A LAVISH DINE-OUT

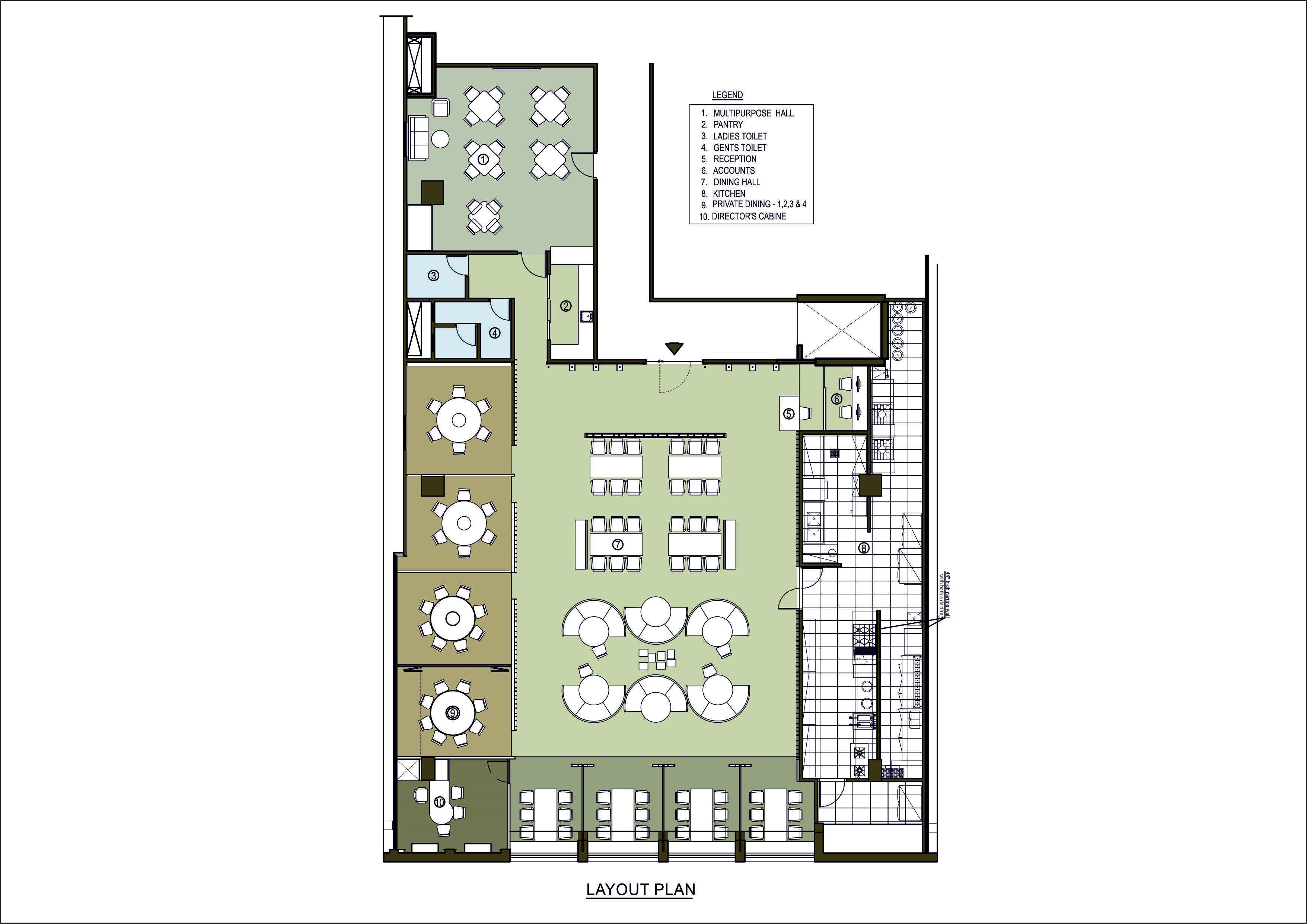
The core idea behind the variety of spaces in this restaurant is the diversity of culture and lifestyles seen in India. The common shared dining is different from the private dining spaces, yet due to their visual connectivity, they complement each other. The reason behind the wavy ceiling and the intermittent arrangement of the lights in the walls is to make those spaces livelier.

The multiplicity of experiences offered across the restaurant in terms of the different themes is in affinity with the varied delicacies served to the guests. Every different dining space propagates different kind of moods. This is achieved by the unique articulation of each of the private dine rooms.

Even though the dinner is divided into multiple courses and requires a longer time to eat, yet one does not lose interest due to the humane ambience. The semi-circular seating arrangements and the floating ceiling were envisaged; which not only are in harmony with each other but also make the entire experience more dynamic. The immaculate and specific attention to details has helped in achieving such a plethora of different spaces.

Location: Vadodara

Client: Mr. Bimal Khambhatiya

Year of Completion: 2017

Project Type: Retail

Area: 4000 sq. ft.